(902) 489-4763
Commercial

98 Lakecrest Drive, Dartmouth, NS (MLS® 202601891).

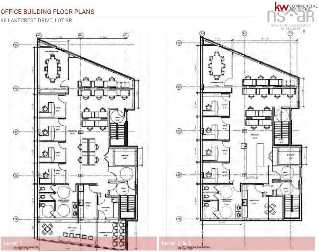
98 Lakecrest Drive, Dartmouth, NS (MLS® 202601891): - High Exposure location with frontage on Main Street, Dartmouth, and multiple ingress points to Lakecrest Drive Via Helene Ave & Major Drive, and direct egress points to Main street adjacent the property. 525.00 SF main floor building with additional basement below, with C-2 zoning allowing for uses such as small car dealership with 12 parking available, office or retail re-development, or 12 unit multi-residential development(plans available). C-2 Zoning permits C-1, R-3. Ideal commercially affordable owner occupied opportunity for a small business owner.

Directions
Main St Dartmouth to Helene Ave or Major Ave to Lakecrest Drive, #98

Listing Courtesy of: Keller Williams Select Realty (Branch)

$499,000
MLS®
202601891
PID
009191585
List Price
$499,000
Type
Commercial Retail
Building Age
72
Flooring
Wood
MLA
525 ft2
TLA
525 ft2
Water
Municipal

contact the agent.

Candice Blaney
(902) 489-4763
cblaney@remaxnova.ca

Candice has been a licensed REALTOR® since 2009. Candice's knowledge allows her to offer superior guidance, advice and service through the delicate p…

Candice Blaney.

REALTOR ®
RE/MAX nova
(902) 489-4763
cblaney@remaxnova.ca

Similar Listings.