(902) 489-4763
Single Family

140 Lake Loon Road, Lake Loon, NS (MLS® 202603840).

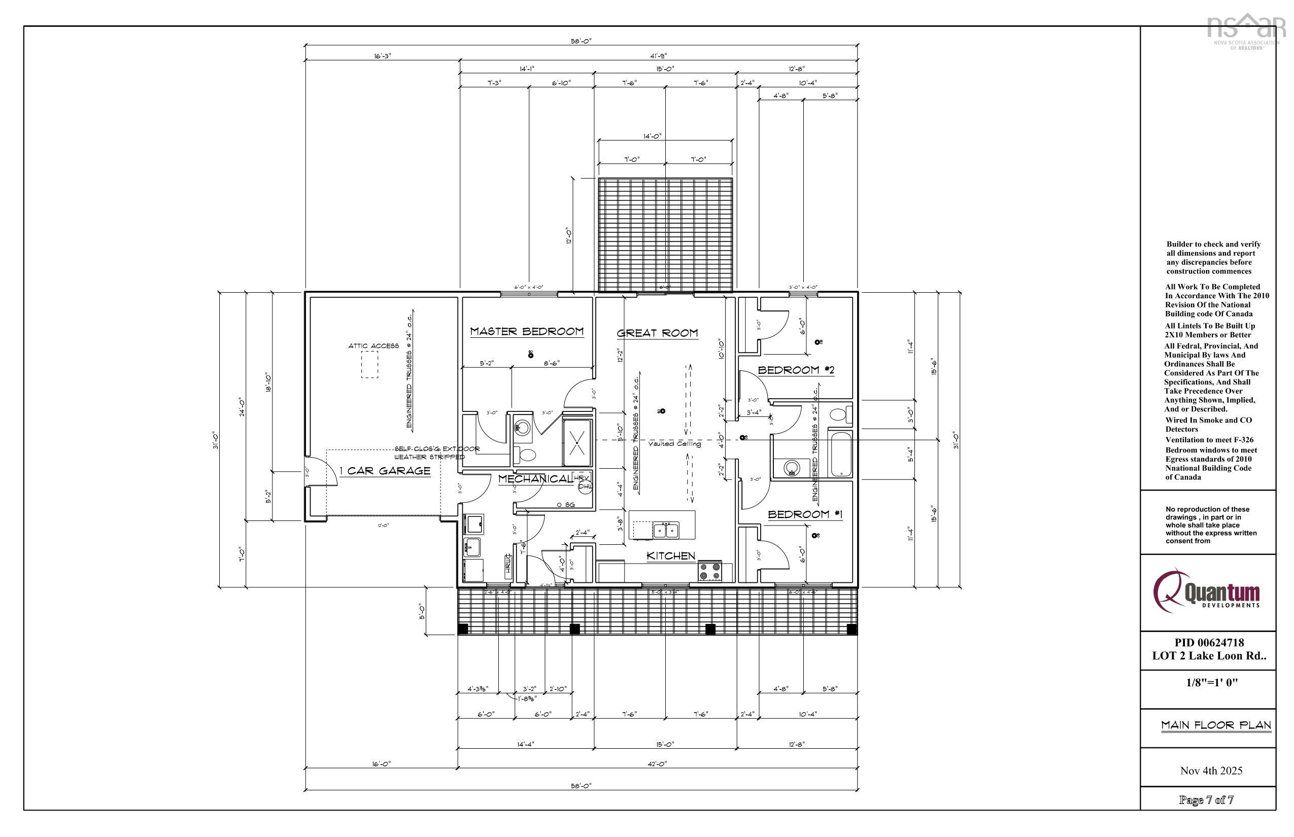
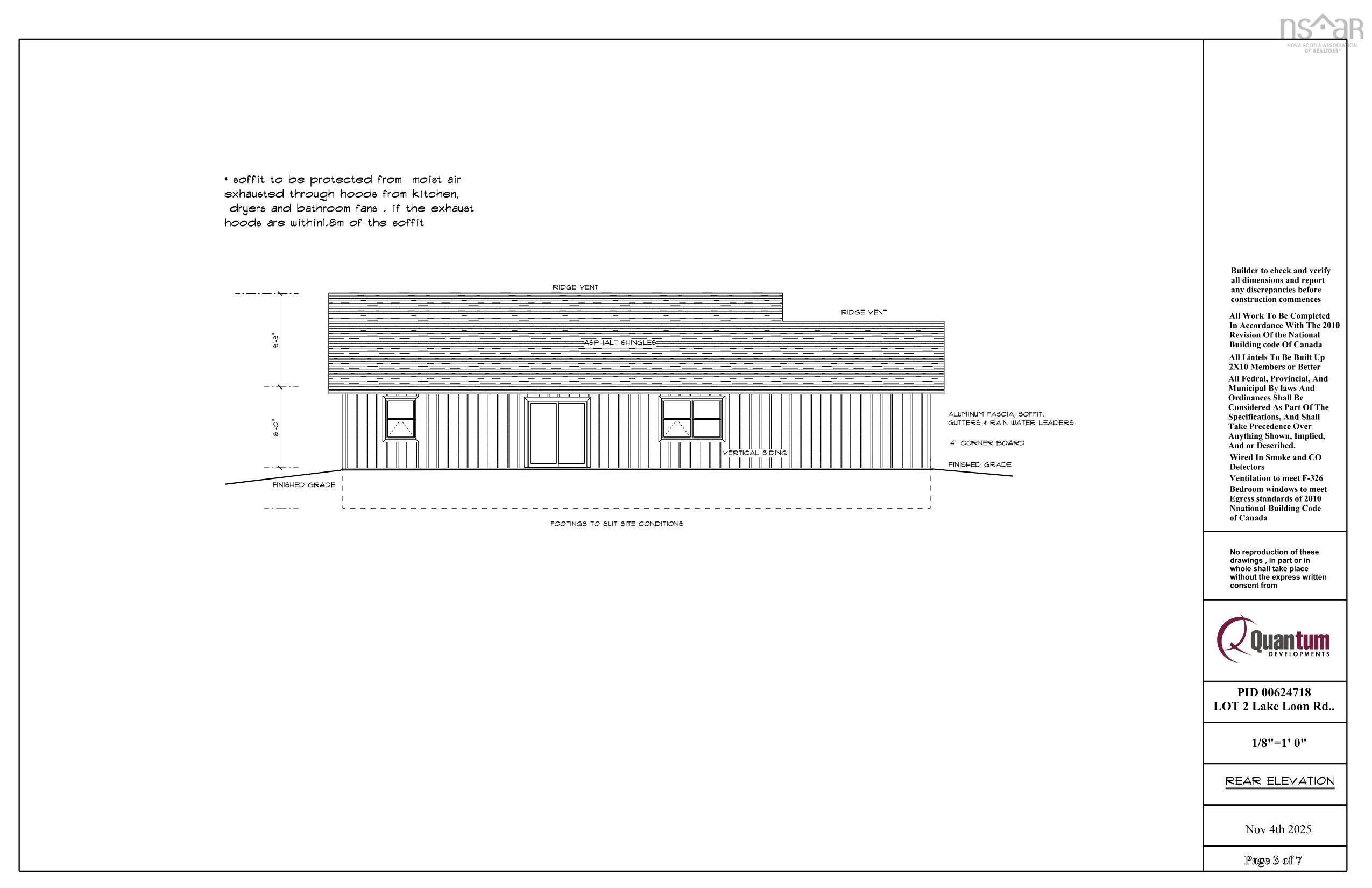
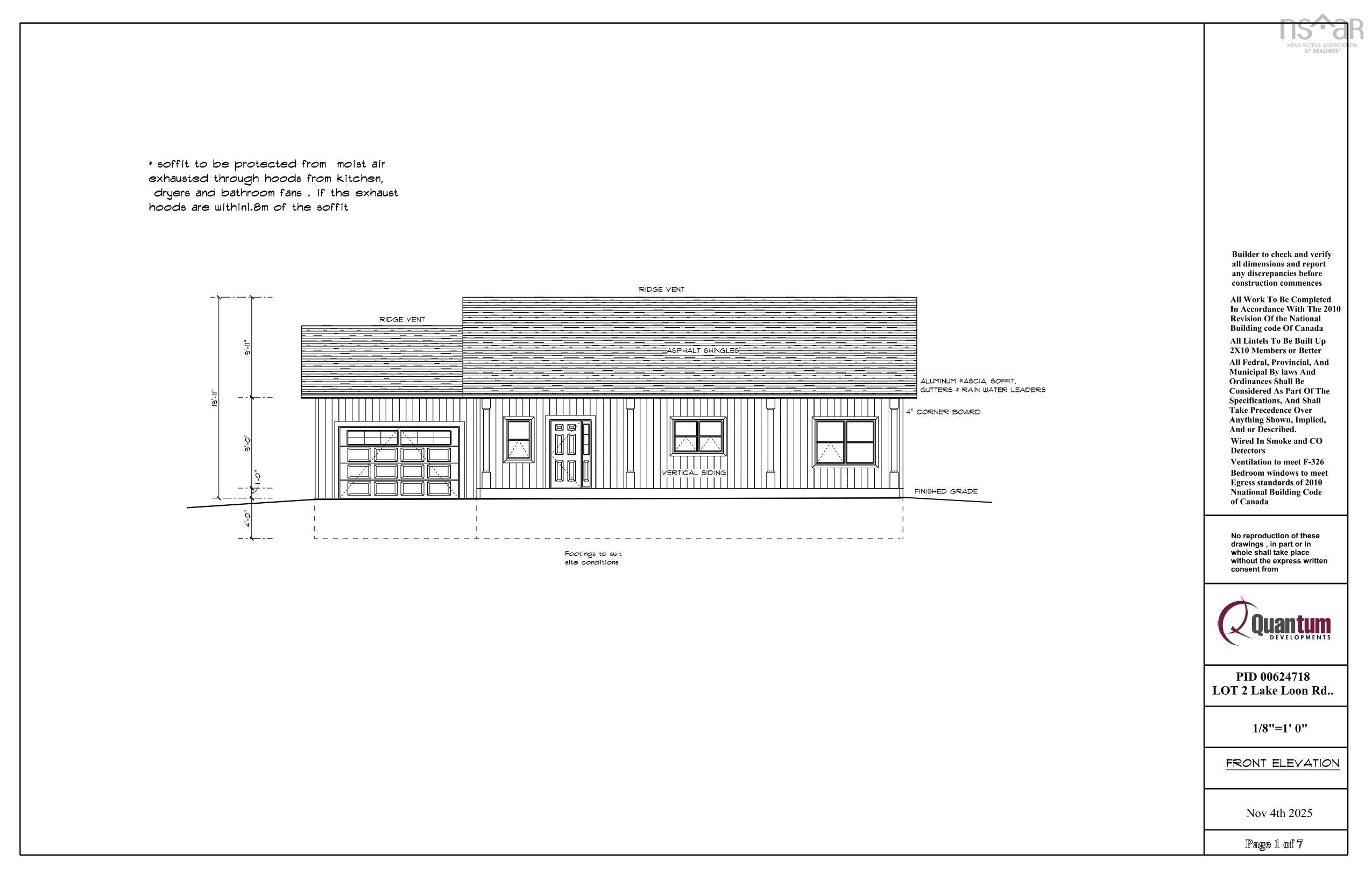
140 Lake Loon Road, Lake Loon, NS (MLS® 202603840): Move-in this April! Welcome to this beautifully crafted new construction bungalow in the heart of Lake Loon. Thoughtfully designed with 1,302 square feet of efficient, one-level living, this 3-Bed 2-Bath home is both practical and inviting. The open-concept kitchen and dining area creates a natural gathering space, enhanced by a stunning vaulted ceiling that adds warmth, light, and architectural character. The modern country design elements shine throughout, combining clean lines with high-end finishes to create a space that feels both fresh and welcoming. A stylish electric fireplace anchors the main living area, providing ambiance and comfort year-round, while the energy-efficient heat pump ensures economical heating and cooling in every season. The attached garage offers convenience and additional storage, complemented by a paved driveway for added curb appeal and durability. Spacious front and back decks provide outdoor gathering spaces in addition to the expansive front and back yards. Paved driveway and landscaping around the perimeter of the home included. Located in the community of Lake Loon, this home provides peaceful surroundings while still being within easy reach of Dartmouth amenities, schools, parks, and commuting routes. This thoughtfully built bungalow by Harbour West Homes delivers quality craftsmanship, functional design, and everyday comfort in one exceptional package. Covered by 8-year LUX home warranty.

Directions
Montague Rd to Lake Loon Rd

Listing Courtesy of: Century 21 All Points

$619,900
MLS®
202603840
PID
41552027
List Price
$619,900
Type
Single Family
Style
Detached
Sewer
Septic
Building Age
0
Foundation
Poured Concrete
Exterior
Vinyl
Flooring
Tile, Vinyl Plank
MLA
1,302 ft2
TLA
1,302 ft2
Bedrooms
3
Bathrooms
2
Water
Municipal

Utilities

  • Cable
  • Electricity
  • High Speed Internet
  • Telephone

Features

  • Electric Fireplace

Rooms.

LevelTypeDimensions
Main FloorFoyer4 x 6
Main FloorKitchen15 x 15.6
Main FloorLiving Room15 x 15.6
Main FloorPrimary Bedroom13.8 x 12.2
Main FloorEnsuite Bath 18.6 x 5.10
Main FloorBedroom11.4 x 12.8
Main FloorBedroom11.4 x 12.8
Main FloorBath 18.4 x 8
Main FloorLaundry5.3 x 11.9
Main FloorMain Hallway


Schools.

TypeName
Elementary SchoolHumber Park Elementary School
Middle SchoolGraham Creighton Junior High School
High SchoolGraham Creighton Junior High School
Middle School (Fr. Imm.)Graham Creighton Junior High School
High School (Fr. Imm.)Auburn Drive High School

contact the agent.

Candice Blaney
(902) 489-4763
cblaney@remaxnova.ca

Candice has been a licensed REALTOR® since 2009. Candice's knowledge allows her to offer superior guidance, advice and service through the delicate p…

Candice Blaney.

REALTOR ®
RE/MAX nova
(902) 489-4763
cblaney@remaxnova.ca

Similar Listings.