(902) 489-4763
Single Family

3 Tutor Court, Dartmouth, NS (MLS® 202526347).

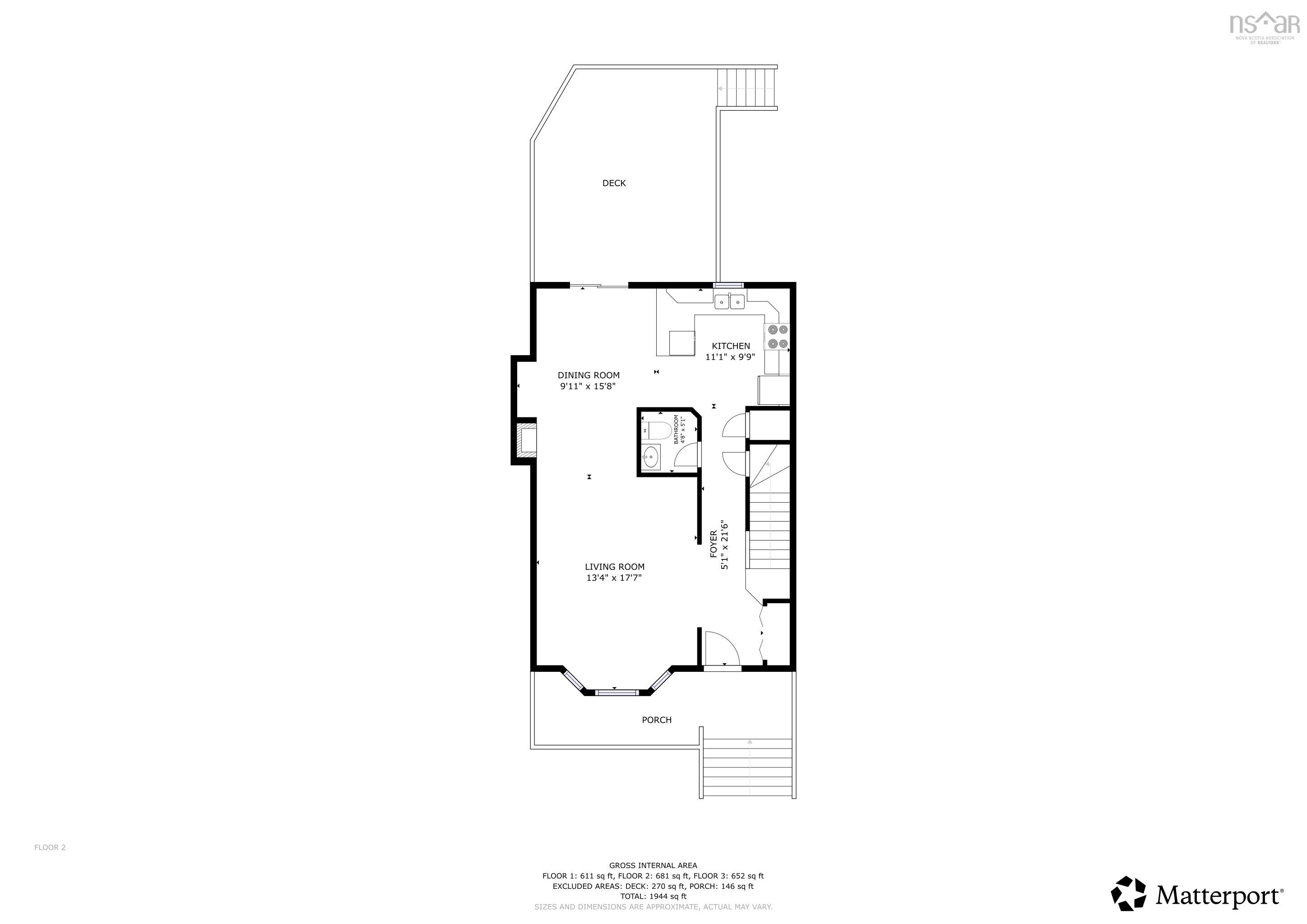
3 Tutor Court, Dartmouth, NS (MLS® 202526347): Looking for move-in ready on a quiet cul-de-sac in a fantastic area? 3 Tutor Court is it! Located in a family friendly neighbourhood, this beautiful two storey home comes complete with thoughtful updates. There is room for the whole family as it is finished on all levels with care and consideration given to layout, design and function. This home is ready for new owners. Under the covered porch, the welcoming and spacious entry leads into the large main level living room with a cozy fireplace. This great space flows nicely to the spacious updated dining and kitchen with quartz countertops, loads of cabinets, and a great pantry for extra storage. The easy flow extends through the patio door to an expansive deck which adds some great outdoor living space. This level also has a ductless heat pump and a convenient main floor half-bath. The beautiful staircase leads to the bedroom level. The primary suite oasis with a heat pump and skylights contains an adjoining full ensuite and walk-in closet. A freshly renovated full bathroom and 2 other bedrooms complete the upper space. The lower level boasts a terrific family room, laundry, loads of storage and utility room. Nestled in sought after Lancaster, Tutor Court is off the main routes, but still close to everything. So, this quiet neighbourhood is an ideal location to be away from the hustle and still be able to quickly access nearby amenities and work centres. Commutes are a breeze, access to 100 series highways are quick and all types of shopping are nearby with the Big Mall in Dartmouth, Dartmouth Crossing and grocery stores just a few minutes away. The vibrant greater community of Dartmouth is close, too. The 'City of Lakes' has all any family member would want: outdoor activities, cafes, shops, gyms, restaurants and so much more. Be in lively Downtown Dartmouth in just a few minutes and Halifax, too. Be sure to view the Virtual tour and book a viewing!

Directions
Woodland Road to Lancaster Drive to Argus Drive to Tutor Court

Listing Courtesy of: Royal LePage Anchor Realty

$599,900
MLS®
202526347
PID
40788747
List Price
$599,900
Type
Single Family
Style
Detached
Sewer
Municipal
Building Age
25
Foundation
Poured Concrete
Exterior
Vinyl
Flooring
Hardwood, Laminate, Tile
MLA
1,488 ft2
TLA
2,037 ft2
Bedrooms
3
Bathrooms
3
Water
Municipal

Utilities

  • Cable
  • Electricity
  • High Speed Internet

Features

  • Air Exchanger
  • HRV (Heat Rcvry Ventln)

Community Features

  • Beach
  • Golf Course
  • Marina
  • Park
  • Place of Worship
  • Playground
  • Public Transit
  • Recreation Center
  • School Bus Service
  • Shopping

Rooms.

LevelTypeDimensions
Main FloorFoyer8X5
Main FloorMain Hallway
Main FloorLiving Room20.3X13.3
Main FloorDining Room12.5X9.9
Main FloorKitchen11X9.9
Main FloorBath 14.11X4.7
LevelTypeDimensions
2nd LevelPrimary Bedroom14.7X10.7
2nd LevelEnsuite Bath 16.10X6
2nd LevelBedroom10.4X10.3
2nd LevelBedroom10.3X9.3
2nd LevelBath 28.9X7.10
2nd LevelUpstairs Hallway
LevelTypeDimensions
Lower LevelRec Room23.6X12.10
Lower LevelLaundry12.9X5.9
Lower LevelUtility19X7
Lower LevelStorage7X5.5


Schools.

TypeName
Elementary SchoolJohn Macneil Elementary School
Middle SchoolJohn Martin Junior High School
High SchoolJohn Martin Junior High School
Elementary School (Fr. Imm.)Shannon Park Elementary School
Middle School (Fr. Imm.)Dartmouth South Academy
High School (Fr. Imm.)Dartmouth High School

contact the agent.

Candice Blaney
(902) 489-4763
cblaney@remaxnova.ca

Candice has been a licensed REALTOR® since 2009. Candice's knowledge allows her to offer superior guidance, advice and service through the delicate p…

Candice Blaney.

REALTOR ®
RE/MAX nova
(902) 489-4763
cblaney@remaxnova.ca

Similar Listings.