(902) 489-4763
Single Family

3815 Memorial Drive, Halifax, NS (MLS® 202603900).

3815 Memorial Drive, Halifax, NS (MLS® 202603900): Welcome to 3815 Memorial Drive — a beautifully maintained home in Halifax’s sought-after North End. This 3-bedroom, 1.5-bath home blends character, comfort, and thoughtful updates. The kitchen features stainless steel appliances and a clean, timeless design perfect for everyday living and easy entertaining. Bright, inviting living spaces flow effortlessly, while the ducted heat pump ensures year-round comfort. Downstairs, a rec room with high ceilings offers rare flexibility — ideal for movie nights, a home gym, or a play space. Outside, enjoy a private deck and yard, perfect for summer evenings and weekend barbecues. Minutes from downtown, parks, cafés, and restaurants, this location puts you in the heart of Halifax’s vibrant North End. Well maintained. Well located. Move-in ready. Approximate Dates: Front Walk Way (2024), Front Steps (2023), Exterior House Painted (2025), Windows (2019), Front Porch Reno (2022), Front Door (2022), Central Heat Pump (2021), Bathroom Vanities (2024), Back Deck (2020), Stove (2023), Dishwasher (2024), Kitchen Counter Top (2024).

Directions
Lady Hammond Rd to Memorial Drive

Listing Courtesy of: RE/MAX Nova (Halifax)

$729,900
MLS®
202603900
PID
00019992
List Price
$729,900
Type
Single Family
Style
Detached
Sewer
Municipal
Building Age
63
Foundation
Poured Concrete
Exterior
Wood Shingles
Flooring
Carpet, Hardwood, Tile, Vinyl
MLA
1,145 ft2
TLA
1,580 ft2
Bedrooms
3
Bathrooms
2
Water
Municipal

Utilities

  • Cable
  • Electricity
  • High Speed Internet
  • Telephone

Community Features

  • Park
  • Place of Worship
  • Playground
  • Public Transit
  • Recreation Center
  • Shopping

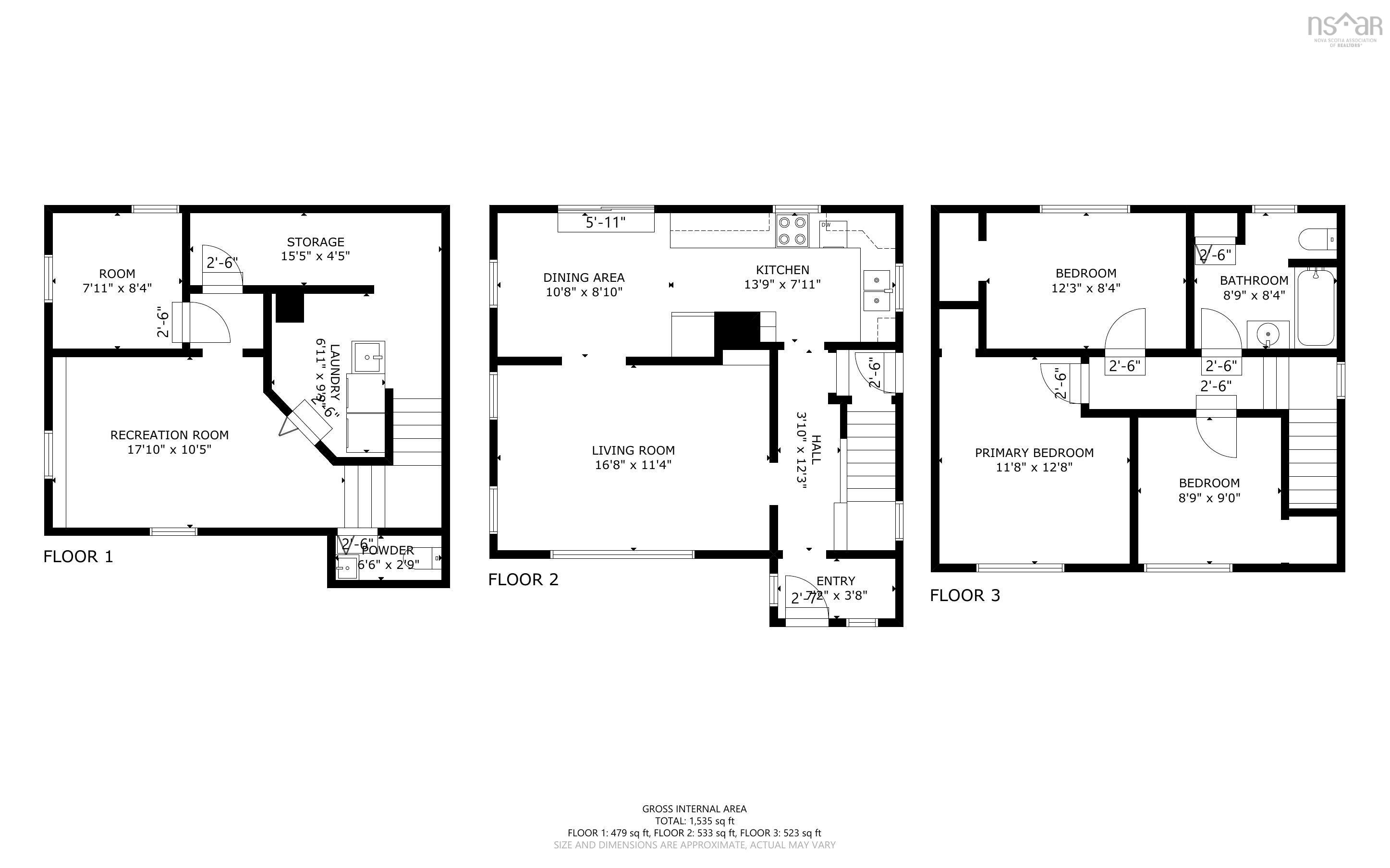
Rooms.

LevelTypeDimensions
Main FloorFoyer7.2 x 3.8
Main FloorLiving Room16.8 x 11.4
Main FloorKitchen13.9 x 7.11
Main FloorDining Room10.8 x 8.10
LevelTypeDimensions
2nd LevelPrimary Bedroom12.8 x 11.8
2nd LevelBedroom12.3 x 8.4
2nd LevelBedroom9 x 8.9
2nd LevelBath 18.9 x 8.4
LevelTypeDimensions
BasementRec Room17.10 x 10.5
BasementLaundry6.11 x 9.9
BasementStorage15.5 x 4.5
BasementBath 26.6 x 2.9


Schools.

TypeName
Elementary SchoolSt Stephen's Elementary School
Middle SchoolHighland Park Junior High School
High SchoolHighland Park Junior High School
Elementary School (Fr. Imm.)St Joseph's - Alexander Mckay Elementary School
Middle School (Fr. Imm.)Oxford School
High School (Fr. Imm.)Citadel High School

contact the agent.

Candice Blaney
(902) 489-4763
cblaney@remaxnova.ca

Candice has been a licensed REALTOR® since 2009. Candice's knowledge allows her to offer superior guidance, advice and service through the delicate p…

Candice Blaney.

REALTOR ®
RE/MAX nova
(902) 489-4763
cblaney@remaxnova.ca

Similar Listings.