(902) 489-4763
Single Family

5 Kirk Road, Halifax, NS (MLS® 202605465).

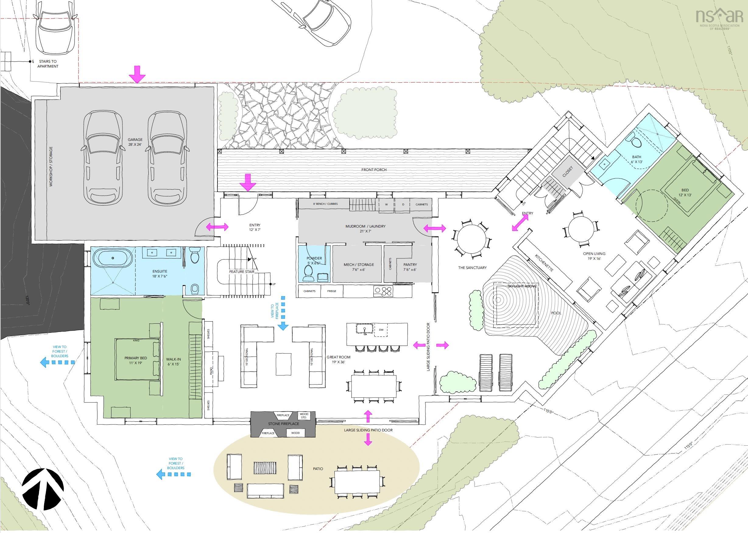
5 Kirk Road, Halifax, NS (MLS® 202605465): Development Opportunity Near Sir Sanford Flemming Park at the Dingle Welcome to a development opportunity in one of Halifax’s most desirable neighbourhoods nestled in this charming seaside enclave just off the Northwest Arm, Sir Sanford Flemming Park, and the Dingle! 5 Kirk Road presents potential for conversion, renovation, redevelopment, or your custom residential forever home. Site and building plans available. Set on a spacious R-1 zoned 15,069 square foot corner lot, this former church consists of one beautifully treed and landscaped lot. 5 Kirk Road offers the tranquility of cottage country with the convenience of city living just 12 minutes from downtown Halifax. Buyers will appreciate the property's proximity to top local amenities including beaches, The Armdale Yacht Club, The Royal Nova Scotia Yacht Squadron, Frog Pond Park, Williams Lake Beach, and scenic walking trails. Whether you’re looking to develop, repurpose, or create a one-of-a-kind property, 5 Kirk Road offers a rare blend of size, location, and flexibility in a neighbourhood celebrated for its community charm and seaside beauty. Interior site preparation has been completed down to the framing and subflooring and all demolition debris removed in preparation for the new owner to make 5 Kirk Road their own. Book your private showing today and explore the incredible potential this property holds.

Directions
Starting from the Armadale Roundabout take the Purcells Cove Road and turn left on Parkhill Road. Take Parkhill Road to Kirk Road.

Listing Courtesy of: RE/MAX Nova (Halifax)

$550,000
MLS®
202605465
PID
41519448
List Price
$550,000
Type
Single Family
Style
Detached
Sewer
Municipal
Building Age
47
Foundation
Block Concrete, Poured Concrete
Exterior
Vinyl
Flooring
Carpet, Linoleum, Tile
MLA
1,487 ft2
TLA
2,443 ft2
Bedrooms
2
Bathrooms
1
Water
Municipal

Utilities

  • Cable
  • Electricity
  • High Speed Internet
  • Telephone

Community Features

  • Beach
  • Marina
  • Park
  • Place of Worship
  • Playground
  • Public Transit
  • School Bus Service
  • Shopping

Rooms.

LevelTypeDimensions
Main FloorFoyer20' /5'6
Main FloorGreat Room19'6" /39'
Main FloorBath 12 pc
Main FloorDen/Office8' /13'
Main FloorDen/Office7'6" /11'
LevelTypeDimensions
BasementKitchen9' /9'6"
BasementRec Room17' /31'


Schools.

TypeName
Elementary SchoolJohn W Macleod-Fleming Tower Elementary School
Middle SchoolCunard Junior High School
High SchoolCunard Junior High School
Elementary School (Fr. Imm.)John W Macleod-Fleming Tower Elementary School
Middle School (Fr. Imm.)Elizabeth Sutherland School
High School (Fr. Imm.)JL Ilsely High School

contact the agent.

Candice Blaney
(902) 489-4763
cblaney@remaxnova.ca

Candice has been a licensed REALTOR® since 2009. Candice's knowledge allows her to offer superior guidance, advice and service through the delicate p…

Candice Blaney.

REALTOR ®
RE/MAX nova
(902) 489-4763
cblaney@remaxnova.ca

Similar Listings.