(902) 489-4763
Single Family

66 Mckay Lane, Eastern Passage, NS (MLS® 202606200).

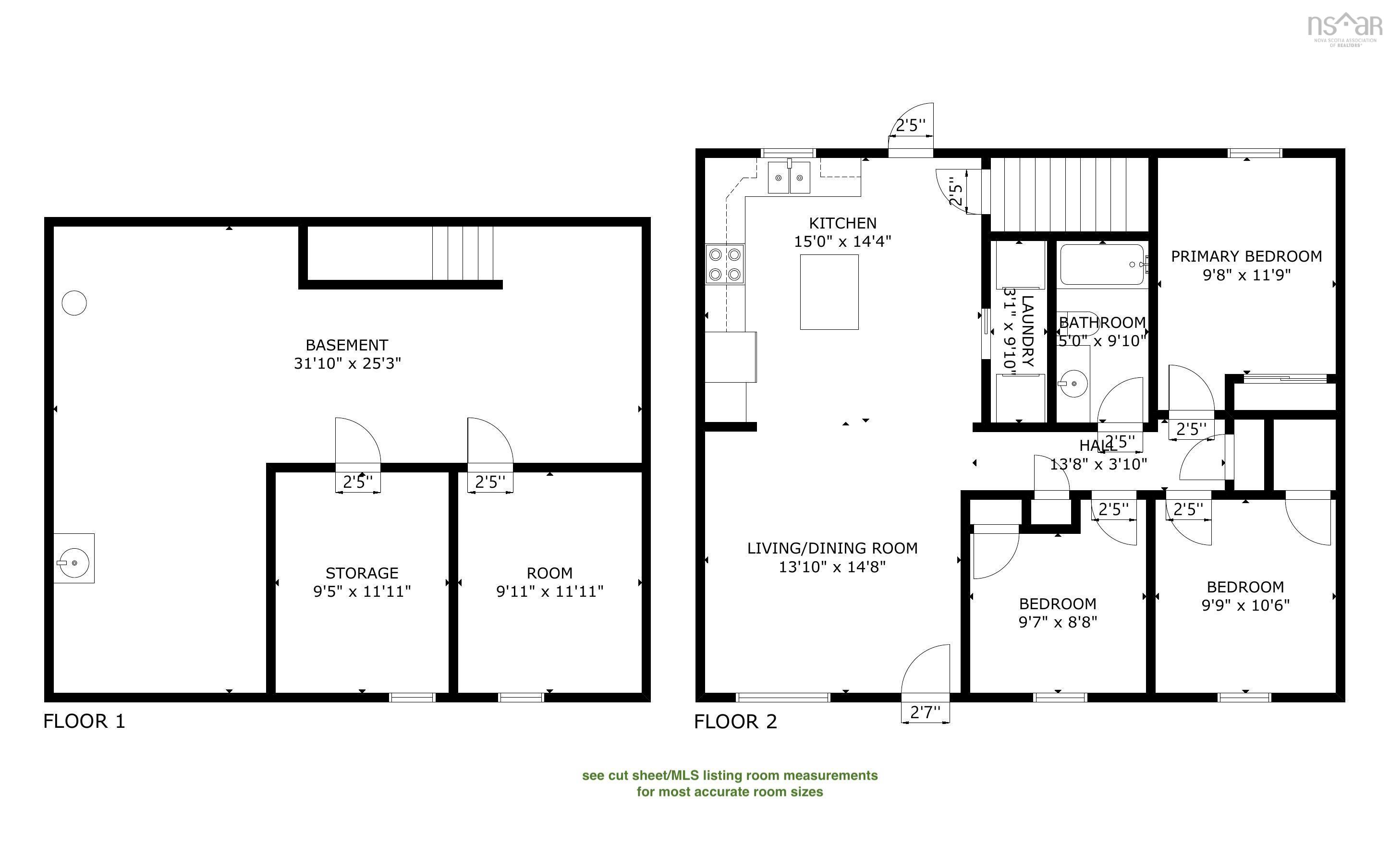
66 Mckay Lane, Eastern Passage, NS (MLS® 202606200): Experience the peace of mind that comes with a 2024 constructed home, combined with the family-oriented seaside neighbourhood of Eastern Passage. This fully detached three bedroom, one full bathroom bungalow is tucked away on a quiet, country-like lane; offering a semi-rural setting all while being close to amenities and Downtown Dartmouth. Newer construction on a mature lot is a rare find. The open-concept kitchen and living room area is kept comfortable year-round by an energy-efficient heat pump. Situated on a generous 6,900-square-foot lot, the property offers ample outdoor space via two side yards. The basement is already plumbed-in for a bathroom and framed for two additional rooms, providing a head start on nearly doubling your living space to over 2,200 square feet. Or leave it as is for storage and/or a large workshop. This property has plenty of room to build a garage or a backyard suite. C2 zoning is broad and allows for business use; a great option for self employed folks. Enjoy a lifestyle defined by nature and community, just minutes from the McCormacks Beach boardwalk, Rainbow Haven Beach and good schools. This location is also exceptionally convenient for military families, offering a quick commute to 12 Wing Shearwater and CFB Halifax. From the local charm of Fisherman’s Cove to the easy access to the city, this home offers the best of seaside living. Comes with a ten year Atlantic Home Warranty.

Directions
Main to McKay

Inclusions
stove, hood vent, washer, dryer, fridge

Listing Courtesy of: Red Door Realty

$509,900
MLS®
202606200
PID
00372631
List Price
$509,900
Type
Single Family
Style
Detached
Sewer
Municipal
Building Age
2
Foundation
Poured Concrete
Exterior
Vinyl
Flooring
Laminate
MLA
1,132 ft2
TLA
1,132 ft2
Bedrooms
3
Bathrooms
1
Water
Municipal

Utilities

  • Cable
  • Electricity
  • Telephone

Features

  • Sump Pump

Community Features

  • Marina
  • Park
  • Playground
  • Public Transit

Rooms.

LevelTypeDimensions
Main FloorKitchen15.3 x 14.10
Main FloorLiving Room14.3 x 13.10
Main FloorPrimary Bedroom11.10 x 10.1
Main FloorBedroom10.2 x 8.3
Main FloorBedroom10.2 x 10.7
Main FloorBath 19.10 x 5.5


Schools.

TypeName
Elementary SchoolHorizon Elementary School
Middle SchoolEastern Passage Education Centre
High SchoolEastern Passage Education Centre
Elementary School (Fr. Imm.)Horizon Elementary School
Middle School (Fr. Imm.)Eastern Passage Education Centre
High School (Fr. Imm.)Island View High School

contact the agent.

Candice Blaney
(902) 489-4763
cblaney@remaxnova.ca

Candice has been a licensed REALTOR® since 2009. Candice's knowledge allows her to offer superior guidance, advice and service through the delicate p…

Candice Blaney.

REALTOR ®
RE/MAX nova
(902) 489-4763
cblaney@remaxnova.ca

Similar Listings.