(902) 489-4763
Single Family

Gar-6 24 Garvey Court, Bedford, NS (MLS® 202605944).

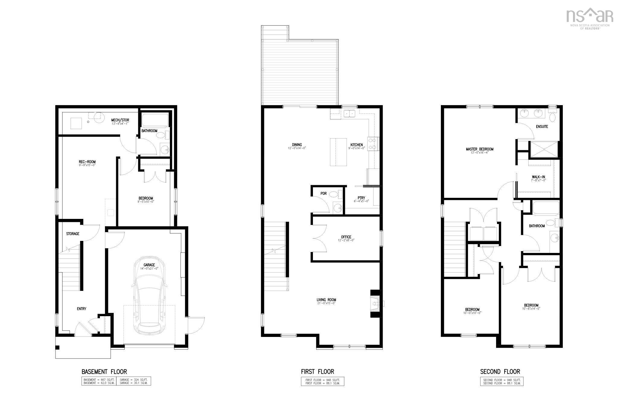
Gar-6 24 Garvey Court, Bedford, NS (MLS® 202605944): Introducing “The Isobel” by Rooftight Homes, a beautifully designed two-storey offering 2,563 sq ft of finished living space on Garvey Court, the newest street in Brookline Park, The Parks of West Bedford. As the final phase of this highly sought-after community, Garvey Court represents a rare opportunity to secure new construction in one of Halifax’s most established and desirable neighbourhoods. This thoughtfully designed home features 9-foot ceilings on both the main level and the fully finished basement, creating a bright and spacious feel throughout. The lower level includes a recreation room, fourth bedroom, and full bathroom, offering excellent flexibility for family living or guests. The main level offers an expansive layout ideal for modern living, complete with an upgraded kitchen featuring quality finishes and a full walk-in pantry. A dedicated office or den provides additional functional space, while the large living room is anchored by a natural gas fireplace. Durable laminate flooring runs throughout the home for a clean and cohesive look. Two hardwood staircases add both style and function, leading to the upper level where the primary suite offers a walk-in closet and a beautifully appointed ensuite with a custom tiled shower. Additional bedrooms and well-designed living spaces provide comfort and flexibility for families of all sizes. Comfort is ensured year-round with a fully ducted heat pump system, providing efficient heating and cooling throughout the home. Upgraded plumbing fixtures and thoughtful finishes further enhance the overall quality and design. To better understand the layout, design, and quality of construction, buyers are encouraged to view completed similar homes available in The Parks of Lake Charles. Located in the highly sought-after Parks of West Bedford, this home offers access to excellent schools, parks, walking trails, and everyday amenities, making it an exceptional opportunity in one of Halifax’s premier communities.

Directions
Terradore to Garvey

Listing Courtesy of: Royal LePage Atlantic

$849,900
MLS®
202605944
PID
41548116
List Price
$849,900
Type
Single Family
Style
Detached
Sewer
Municipal
Building Age
0
Foundation
Poured Concrete
Exterior
Stone, Vinyl
Flooring
Laminate, Tile
MLA
1,896 ft2
TLA
2,563 ft2
Bedrooms
4
Bathrooms
4
Water
Municipal

Utilities

  • Cable
  • Electricity
  • High Speed Internet
  • Natural Gas
  • Telephone

Features

  • Air Exchanger
  • Ensuite Bath
  • HRV (Heat Rcvry Ventln)
  • Fireplace(s)

Community Features

  • Park
  • Playground
  • Public Transit
  • Recreation Center
  • School Bus Service
  • Shopping

Rooms.

LevelTypeDimensions
Main FloorDining Room12 x 14
Main FloorKitchen9 x 14
Main FloorDen/Office12.2 x 8
Main FloorLiving Room21 x 15
Main FloorBath 15.4 x 5.10
Main FloorOTHERPantry 6.4 x 5
LevelTypeDimensions
2nd LevelPrimary Bedroom13 x 16.4
2nd LevelEnsuite Bath 17.8 x 9
2nd LevelOTHERWIC 7.8 x 7
2nd LevelBath 210 x 6.6-jog
2nd LevelBedroom10 x 10
2nd LevelBedroom10.8 x 14
LevelTypeDimensions
BasementBath 36.10 x 9.6
BasementStorage13.9 x 4.1
BasementRec Room9.9 x 15
BasementBedroom9.5 x 10

contact the agent.

Candice Blaney
(902) 489-4763
cblaney@remaxnova.ca

Candice has been a licensed REALTOR® since 2009. Candice's knowledge allows her to offer superior guidance, advice and service through the delicate p…

Candice Blaney.

REALTOR ®
RE/MAX nova
(902) 489-4763
cblaney@remaxnova.ca

Similar Listings.