(902) 489-4763
Single Family

Lw-01 210 Lewis Drive, West Bedford, NS (MLS® 202529341).

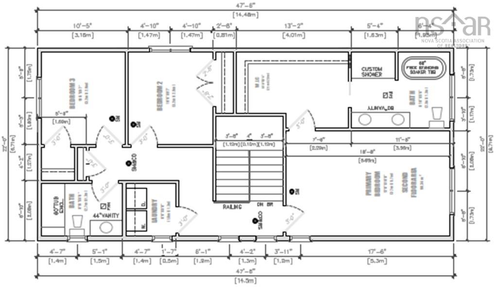
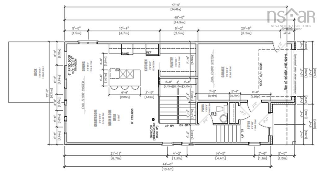
Lw-01 210 Lewis Drive, West Bedford, NS (MLS® 202529341): **Ready to move in by February 14, 2026** Welcome to The Bellview, a 4-bed, 3.5-bath detached home by Shaughnessy Homes in the exclusive Belle Rose Park in West Bedford. Spanning over 2,600 sq. ft. on a 34’ lot, this three-level residence offers premium living with thoughtful design. The main floor boasts an open concept layout with designer kitchen + walk-in pantry, premium finishes, quartz countertops and modern lighting, seamlessly blending style and function. Step outside to a beautifully finished composite deck, providing long-lasting durability with low maintenance. Enjoy ducted heating and cooling with natural gas backup, plus rough-ins for a gas range, dryer, BBQ, water heater, and a 50 AMP EV charger for future-ready living. Engineered hardwood flows through the main and upper levels, while the finished basement features durable laminate, perfect for versatile living spaces. Nestled off Larry Uteck Blvd, Belle Rose Park is a serene, master-planned community with easy access to schools, shops, and parks. Built with Shaughnessy Homes’ renowned craftsmanship, The Bellview is part of a limited collection of detached homes in one of Bedford’s most desirable neighborhoods.

Directions
Hammonds Plains Road to Lewis Drive

Listing Courtesy of: Royal LePage Atlantic

$864,900
MLS®
202529341
PID
41547340
List Price
$864,900
Type
Single Family
Style
Detached
Sewer
Municipal
Building Age
0
Foundation
Poured Concrete
Exterior
Stone, Vinyl
Flooring
Engineered Hardwood, Laminate, Tile
MLA
1,820 ft2
TLA
2,601 ft2
Bedrooms
4
Bathrooms
4
Water
Municipal

Utilities

  • Cable
  • Electricity
  • High Speed Internet
  • Natural Gas
  • Telephone

Features

  • Ensuite Bath
  • HRV (Heat Rcvry Ventln)
  • Electric Fireplace

Community Features

  • Park
  • Playground
  • Public Transit
  • Recreation Center
  • School Bus Service
  • Shopping

Rooms.

LevelTypeDimensions
Main FloorFoyer6 x 8.6
Main FloorBath 12 Piece
Main FloorLiving Room12 x 19.6
Main FloorDining Room9 x 9
LevelTypeDimensions
Lower LevelKitchen9 x 10.2
Lower LevelRec Room10.6 x 18.1
Lower LevelBedroom8.1 x 12.7
Lower LevelBedroom8.1 x 12.7
Lower LevelBath 34 Piece
LevelTypeDimensions
2nd LevelPrimary Bedroom12 x 18.8
2nd LevelEnsuite Bath 15 Piece
2nd LevelBedroom10 x 6.7
2nd LevelBedroom10 x 6.7
2nd LevelBath 24 Piece
2nd LevelLaundry6 x 5.8


Schools.

TypeName
Elementary SchoolBasinview Drive Community School
Middle SchoolRocky Lake Junior High School
High SchoolRocky Lake Junior High School
Elementary School (Fr. Imm.)Sunnyside Elementary School
Middle School (Fr. Imm.)Rocky Lake Junior High School
High School (Fr. Imm.)Charles P Allen High School

contact the agent.

Candice Blaney
(902) 489-4763
cblaney@remaxnova.ca

Candice has been a licensed REALTOR® since 2009. Candice's knowledge allows her to offer superior guidance, advice and service through the delicate p…

Candice Blaney.

REALTOR ®
RE/MAX nova
(902) 489-4763
cblaney@remaxnova.ca

Similar Listings.