(902) 489-4763
Single Family

Sp-03a Stephs Street, West Bedford, NS (MLS® 202519895).

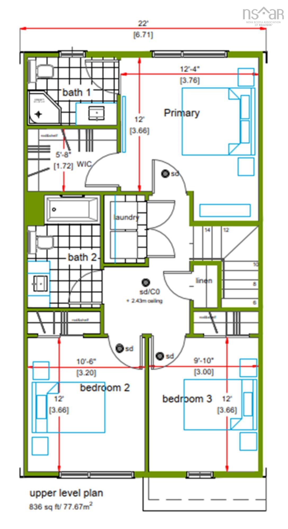
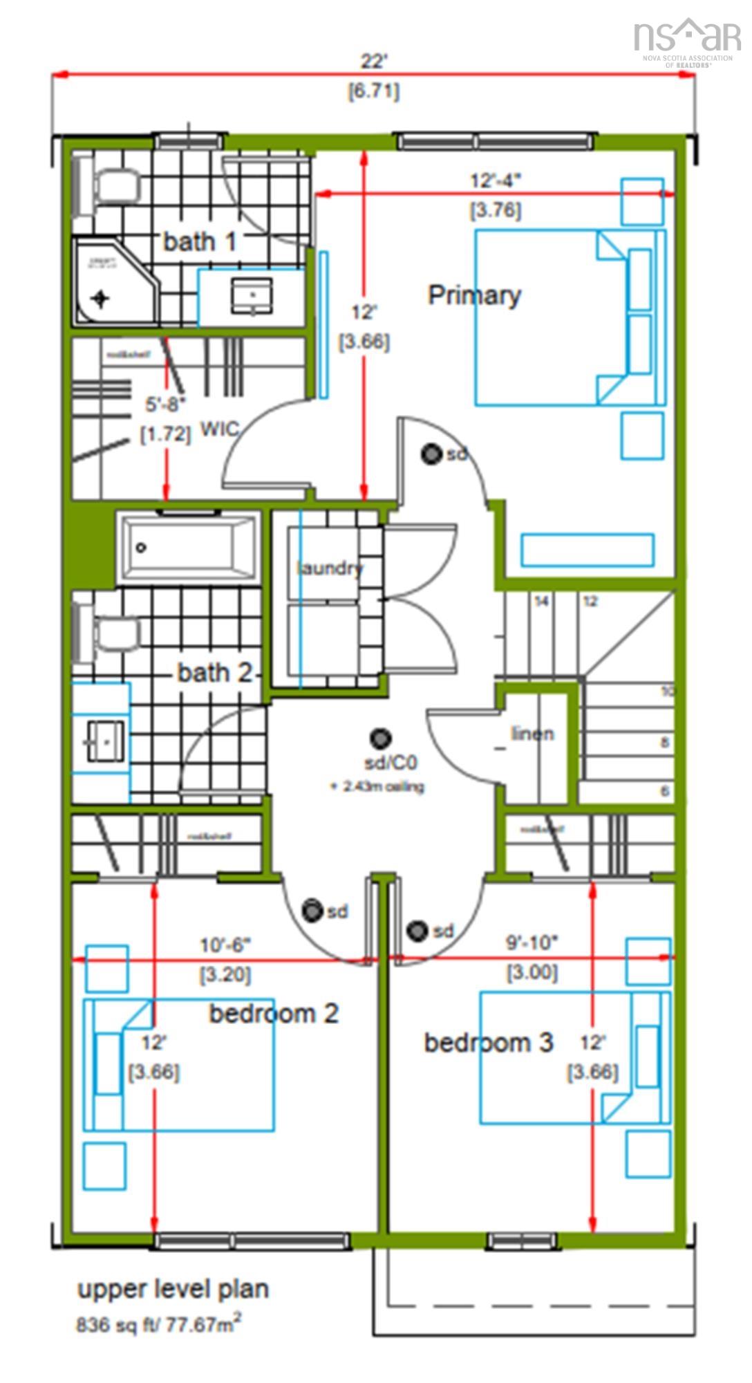
Sp-03a Stephs Street, West Bedford, NS (MLS® 202519895): Discover The Bellhaven, a 3-bed, 3.5-bath corner unit townhome by Shaughnessy Homes in the desirable Belle Rose Park in West Bedford. Spanning 2,243 sq. ft. across three finished levels, this home blends modern comfort with stylish design. The main floor features a home office, a sleek kitchen with premium finishes, and an open-concept living and dining area perfect for entertaining. Upstairs, three spacious bedrooms include a luxurious primary suite. Engineered hardwood graces the main and second levels, while the walk-out basement offers a wet bar, and a bright bonus space for guests or recreation. Stay comfortable with ducted heating/cooling with a natural gas backup, plus rough-ins for a gas range, dryer, BBQ, water heater, and a 50 AMP EV charger. Nestled off Larry Uteck Blvd, Belle Rose Park offers easy access to schools, shops, and parks in a quiet, master-planned community. Built with Shaughnessy Homes’ signature quality, The Bellhaven is a rare opportunity to own in one of Halifax’s most sought-after neighborhoods.

Directions
Larry Uteck Blvd to Stephs St

Listing Courtesy of: Royal LePage Atlantic

$744,900
MLS®
202519895
PID
41547597
List Price
$744,900
Type
Single Family
Style
Townhouse
Sewer
Municipal
Building Age
0
Foundation
Poured Concrete
Exterior
Vinyl, Other
Flooring
Laminate, Tile
MLA
1,693 ft2
TLA
2,243 ft2
Bedrooms
3
Bathrooms
4
Water
Municipal

Utilities

  • Cable
  • Electricity
  • High Speed Internet
  • Telephone

Features

  • Ensuite Bath
  • HRV (Heat Rcvry Ventln)

Rooms.

LevelTypeDimensions
2nd LevelLiving Room20.8 x 14.6
2nd LevelKitchen11.4 x 10.4
2nd LevelDining Room10.4 x 11
2nd LevelBath 12 Piece
2nd LevelDen/Office7.8 x 9.4
LevelTypeDimensions
3rd LevelPrimary Bedroom12.4 x 12
3rd LevelEnsuite Bath 13 Piece
3rd LevelBedroom9.1 x 12
3rd LevelBedroom10.6 x 12
3rd LevelBath 24 Piece
3rd LevelLaundry2
LevelTypeDimensions
Lower LevelRec Room14.6 x 10.6
Lower LevelBath 34 Piece


Schools.

TypeName
Elementary SchoolWest Bedford School
Middle SchoolWest Bedford School
High SchoolWest Bedford School
Elementary School (Fr. Imm.)West Bedford School
Middle School (Fr. Imm.)West Bedford School
High School (Fr. Imm.)West Bedford School

contact the agent.

Candice Blaney
(902) 489-4763
cblaney@remaxnova.ca

Candice has been a licensed REALTOR® since 2009. Candice's knowledge allows her to offer superior guidance, advice and service through the delicate p…

Candice Blaney.

REALTOR ®
RE/MAX nova
(902) 489-4763
cblaney@remaxnova.ca

Similar Listings.