(902) 489-4763
Vacant Land

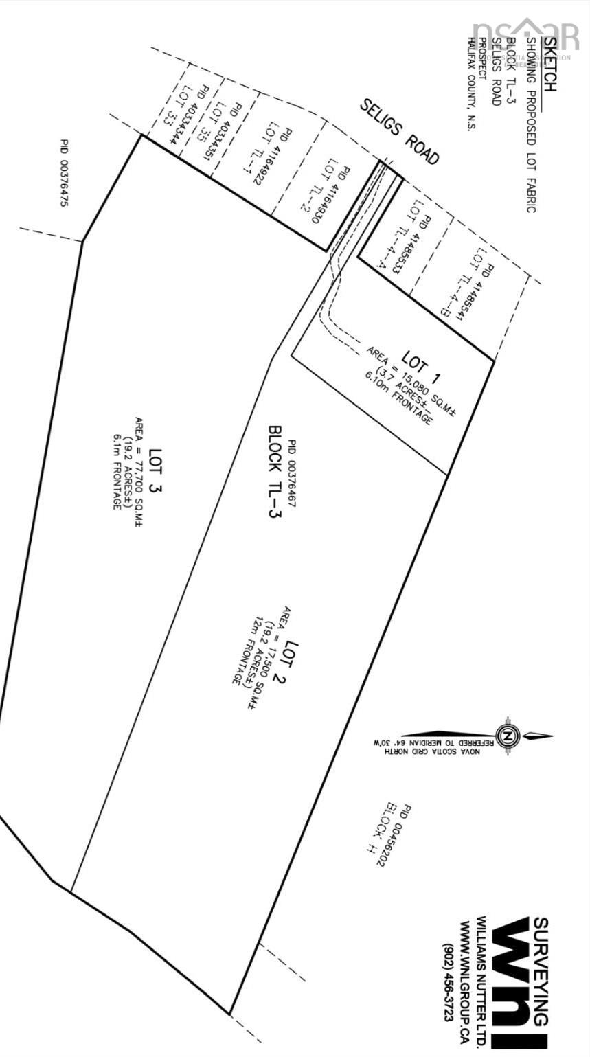
Lot 2 359 Seligs Road, Prospect Village, NS (MLS® 202607779).

Lot 2 359 Seligs Road, Prospect Village, NS (MLS® 202607779): Exceptional opportunity to acquire one or both 19-acre parcels in the desirable coastal community of Prospect, just 20 minutes from Bayers Lake and Halifax amenities. This elevated property offers panoramic views over Shad Bay with western exposure, providing stunning sunset vistas across the water. A rare combination of privacy, scale, and ocean views, the land features a mix of mature forest and partially cleared areas, offering multiple potential building sites. Ideal for a private estate, family compound, or future development opportunity (subject to municipal approvals). The natural topography and positioning maximize both views and seclusion, making this a standout offering in today’s market. Features * Panoramic, ocean views of Shad Bay * Western exposure for sunset views * Large acreage parcel (19.2 acres) * Private, treed setting * Existing cleared areas and access routes * 3-min drive to convenience store, farmers market and NSLC, 20-min drive to Halifax, Bayer's Lake, and local amenities Rare offering of large acreage with ocean views within close proximity to Halifax. Ideal for buyers seeking privacy, investment potential, or a signature build site. There are 4 deeded ocean access points

Directions
Prospect Road to Lower Prospect Road to Seligs Road.

Listing Courtesy of: Sutton Group Professional Realty

$299,000
MLS®
202607779
PID
00376467-2
List Price
$299,000
Type
Acreage
Sewer
None

Utilities

  • None

Schools.

TypeName
Elementary SchoolAtlantic Memorial - Terence Bay Elementary School (Atlantic Memorial)
Middle SchoolBrookside Junior High School
High SchoolHalifax West High School
High School (Fr. Imm.)Halifax West High School

contact the agent.

Candice Blaney
(902) 489-4763
cblaney@remaxnova.ca

Candice has been a licensed REALTOR® since 2009. Candice's knowledge allows her to offer superior guidance, advice and service through the delicate p…

Candice Blaney.

REALTOR ®
RE/MAX nova
(902) 489-4763
cblaney@remaxnova.ca

Similar Listings.